お話を伺ったのは……
深野弘之さん
オーナー、深野家17代目当主。エリア開発の全体監督を務める。
日神山晃一さん
インテリアデザイナー。プランニングや各エリアの設計・施工を担当。
須藤 剛さん
建築家。エリア全体の設計や建築、内装の設計を手掛ける。
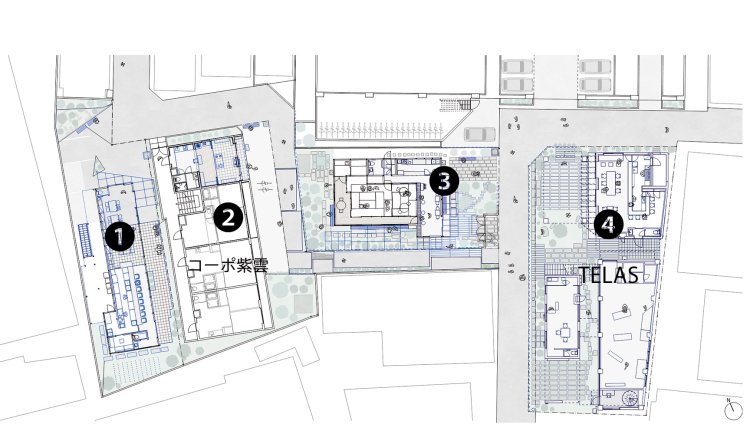
ニシイケバレイ
(1)1F/和酒酔処 わく別誂
池袋駅前で人気の割烹料理店の2号店。
(1)2F/Attic
コワーキングスペース&シェアキッチン。
(2)1F/うつわ base FUURO
目白『FUURO』(休業中)の2号店。
(3)Chanoma
古民家を改装したカフェ・イベントスペース。
(4)1F/PŪL
デリカとお酒の店。ランチ営業もスタート。
(4)1F/PLAY STREET
街なかのような構造物で遊べるパルクールジム。
(4)1F/3rrrd
2025年5月に完成したシェアスペース。
「気持ちのいい風が通る街にしたい」
はじめてこの谷に迷い込んだ時のことはよく覚えている。どこに向かうでもなく歩いていると、路地を抜けた先に数軒の古い建物が現れた。軒先に緑がそよぎ、曲がりくねった小径(こみち)があって、道端のベンチにはのんびりおしゃべりする人たち。ビルの間にぽっかりあいた空が眩しくて、そこだけ穏やかな風が流れているような不思議な場所だった。後に、それは「ニシイケバレイ」という名のエリアだったことを知る。
「一帯をどういう場所にしていこうか考えるところから始まりました」と話すのは、2019年にこの土地を受け継いだ深野さん。敷地は約3000平方m、自身も暮らしていた築70年以上の平屋をはじめ複数の建物がある。宝塚市で同規模のエリアマネジメントを進めていた「INNO(イノ) TOWN」を知り、同じように「直径100mのまちづくり」を実践できないかと思案。池袋のイベントやリノベーションスクールで顔を合わせていた面々に相談し、縁がつながって、ニシイケバレイは動き出した。
プランニングを手掛けた日神山さんは「複数の建物を含む範囲に携われる機会はなかなかないし、ポテンシャルがあると感じました」と言う。「池袋のような街のすぐ裏にこういう余白が残っているのは珍しい」と設計担当の須藤さんもうなずく。
開発前の一帯はひと気がなく空間が分断されているような雰囲気で、日神山さんいわく「街の死角」。それを改善すべく、それぞれの建物を囲む塀を取り払い、庭を生かし、緑を増やすことで、ゆるやかにつながる場所へと進化させてきた。「物理的にも人間関係の面でも、気持ちのいい風が通る街にしたいねと当初から話し合っていました。道を歩いていても、敷地内で何をしているのか見えたり気配が感じられたりと、“シーンが見える”ことが大事だと思うんです」と日神山さん。
深野さんが平屋に住んでいた際は住み開きとして庭でイベントを催すこともあったというが、住居だけの場所ですべてをオープンにするのはなかなか難しい。エリアの中核施設となるカフェ『Chanoma』をはじめ飲食店やシェアスペースを設けることで、住んでいる人が利用し行き交う場所が生まれたのだ。
文脈をつなぎ、時間をかけて血が通った場所になる
つながりを重視しているのは空間だけではない。建物の再生を段階的に行っているのも一つの特徴だ。
「一気に変えた方がインパクトはあるのですが、大きな開発は解体や工事で数年間人が使えない空白の時間ができてしまう。街の文脈が途切れないよう更新していくことが必要なんです」と須藤さん。顔が見えるやりとりを重視し、テナントにもビジョンを伝えて、住民との関係づくりにも時間をかけてきた。これも「開発」には違いないのだけれど、人工的なにおいがせず血が通った場所として感じられるのは、丁寧な対話によって地域の人々にも受け入れられたからなのだろう。
取材時の西池袋は週末にふくろ祭りを控えていて、「TELAS」の一角には神酒所の設営が進んでいた。地域の祭りがかかわる場所として、伝統を引き継ぐ地点にもなりつつあるというわけだ。自身の子供たちのことも考え、次の世代に受け渡すことも意識しながら、更新はつづく。「『TELAS』がオープンしたことが一区切りではありますが、引き続きアップデートは続けていくし、ソフト面もさらに育ていきたい」と深野さんは意気込む。
そんなニシイケバレイの変化を見て「楽しそうだと思った」と言う須藤さん。自身が暮らす目白の街にも目を向け、設計事務所に併設した小さな複合施設『CaD』を2024年にオープンした。「目白は商業地と住宅地がはっきり別れてしまっているのですが、車庫一つ分があれば住宅地にも街にひらいた場がつくれる。こういうスペースが増えることで、奥行きのある街になったらいいなと思います」。
人の縁、土地の文脈、そして空間のつながりをつくり出し守ることで、人の気配が絶えない場所になったニシイケバレイ。別の街に活気が生まれるきっかけになる日も遠くないかもしれない。この谷に吹く穏やかな風は、やがてビルを越え、西池袋の外へと広がってゆくはずだ。
住宅地に、ふらっと寄れる約5坪の一角『CaD』
街歩きついでにお茶する人もいれば、ハムを買って帰るご近所さんもいる。立ち上げの際『Chanoma』が監修したドリンクのほか、建築事務所の縁で出合った沖縄『TESIO』のソーセージ、清澄白河の店舗を設計した『IMADEYA』セレクトのワインなど、須藤さんがこれまでに出合った魅力をぎゅっと詰め込んだ空間だ。ポップアップを開催したり、地域のイベントを主催したりと、目白のつながりを広げる拠点になっている。
取材・文=中村こより 撮影=山出高士
『散歩の達人』2025年11月号より









