オリンピア興業株式会社
レンタルオフィス「METSオフィス新宿三丁目6階」が2025年11月1日オープン! 「METSオフィス新宿三丁目3階」・「METSオフィス新宿三丁目7階」もリニューアル!

オフィスエントランス
新宿区の自社ビル運営のバーチャルオフィスとレンタルオフィスを展開するオリンピア興業株式会社(代表取締役:葉山相也)は、2025年11月1日にMETSレンタルオフィス新宿三丁目が従来の3階、7階に加えて6階にオープンします!
これから事業を始める方や運営中のバーチャルオフィスからのステップアップを考えている方等が気軽に安心してご利用頂ける専用のオフィス空間を格安でご用意いたしました。
詳細は公式サイト(https://mets-office.com/plan-service/shinjuku3/)でご覧いただけます。
募集概要
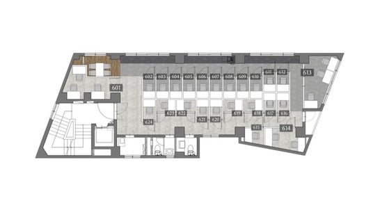
住所:東京都新宿区新宿5丁目11番30号新宿第五葉山ビル6階
オフィス数:計24部屋(1人用21部屋、2人用1部屋、3人部屋2部屋)
設備:完全個室、家具付き(デスク/チェア)、無料Wi-Fi、ウォーターサーバー、複合機等
ご利用可能時間:24時間365日
月額費用(サービス利用料): 1人用49,500円~、2人用77,000円~、3人用132,000円~
初期費用例:
1人用(616号室)の場合→49,500円(内訳:初月サービス利用料)
2人用(614号室)の場合→77,000円(内訳:初月サービス利用料)
3人用(601号室)の場合→132,000円(内訳:初月サービス利用料)
※オープン記念キャンペーン適用の場合
【オープン記念キャンペーン開催中】
オープンを記念して、通常は初期費用で必要な「METSオフィス入会金+清掃料」が全額無料となります!※最大132,000円割引※
「サービス利用料1ヵ月分」以外に余分な費用は発生いたしません。
とてもお得なキャンペーンですので、ぜひご活用ください!
適用条件
※2025年12月末日迄のレンタルオフィスの契約開始が必要となります。
※契約期間が半年に満たなかった場合は違約金が発生します。
オフィスギャラリー

平面図

フリースペース

3人部屋(301号室)
1人用個室(615号室)
1人用個室(611号室)
通路
詳細を見る
METSレンタルオフィス新宿三丁目のおすすめポイント
1.自社ビル運営だから格安なのに倒産リスクがなく安心
不動産事業歴72年の実績があるオリンピア興業株式会社が自社ビルで運営するレンタルオフィスで、一般的な転貸オフィスと異なり、拠点の閉鎖リスクがなく、長期的に安心してご利用頂けます。
また、自社ビル運営の為、中間マージンが発生せず無駄なコストをカットすることができ、長期的に格安のサービス利用料で提供することが可能でコスト面でも安心してご利用頂けます。
2.各種許認可等、柔軟な対応が可能
自社ビル運営の為、ビル所有者等の許可が必要な業種への承諾書等の発行も対応可能です。
また、転貸オフィスではなかなか受け入れてもらえない案件にもご相談頂ければ柔軟に対応しております。
3.万全な管理体制とスタッフの顔が見える安心感のあるオフィス
オフィス専属のスタッフが配置されていることに加えて、ビル全体として自社管理を行っているため、オフィス空間だけでなくビル全体として常にしっかり管理された、清潔で安心感のあるオフィス空間をご利用頂けます。
4.ランニングコストがコントロールしやすい
METSオフィス新宿三丁目では1人用~1フロアオフィス迄取り扱っている為、その時の状況に応じて適切なオフィス空間を選択することが可能です。
レンタルオフィス以外にもバーチャルオフィスを運営しているため、一時的に事務所をなくしてランニングコストを抑えたい場合も、バーチャルオフィスに変更することで登記住所や申請住所等を変えることなく、同じ住所で継続してビジネスを行うことができます。
5.おしゃれでキレイな内装
格安を謳うレンタルオフィスの中でも内装にもこだわっております。ワンフロアの中に、異なるテイストを取り入れるなど、リラックスして働けるだけでなく、来訪されるお客様にも心地よさと信頼感を与える空間作りとなてっております。
“キレイ”と“機能性”を兼ね備えた新オフィスを、ぜひ体感してください。
6.好立地
新宿駅東口から徒歩10分、新宿三丁目駅から徒歩3分という好立地の自社ビル直営レンタルオフィスです。副都心線、丸ノ内線、都営新宿線の3路線が利用でき、様々な場所へ容易にアクセスが可能です。オフィスの近隣には飲食店や買い物スポット等、ビジネス以外でも楽しめる要素も盛りだくさんです。
7.充実した設備
Wi-Fiや複合機、デスクや椅子など業務に必要な設備があらかじめ用意されており、完全個室でプライバシーが確保されています。
また、オフィス内(7階)には貸し会議室を完備しており、会員様は特別価格にてご利用いただけます。
お打ち合わせや商談等にぜひご活用ください。
※詳細は公式サイト(https://mets-office.com/plan-service/gyoen/)をご確認ください。
運営事業者(オリンピア興業株式会社)について
不動産業を70年以上営んできた経験とノウハウを活かし、自社ビル直営による無駄なコスト削減や拠点閉鎖リスクがない安心できるオフィスサービスとして、2012年より「METSオフィス」を運営しております。
METSオフィスではレンタルオフィスの他にも、同じ拠点で「バーチャルオフィス」「リーシング(フロア貸し)」事業を行っているため、お客様の成長に合わせたサービスをご提供することができます。
多くの事業者が転貸という形式で運営することが常態化しているオフィスサービス業界において、未だ誤解されがちなバーチャルオフィスの地位向上や、お客様が安心して利用できるオフィスサービスを末永く提供できるよう日々努めており、また今後に向けてサービスの改善・改革への取り組みも進めています。
また、オフィスサービスの提供だけでなく、貸しビル業として培ってきたノウハウ・知識・人材をフルに活用し、起業家様・経営者様のニーズに応えるサービスを多数提供しております。オリンピア興業株式会社は、全てのお客様のビジネスの成功を応援し、共に成長することで社会と人々に貢献することを目的としています。
本件に関するお問い合わせ
【METSレンタルオフィス】
お問い合わせ:https://mets-office.com/contact/
レンタルオフィスHP:https://mets-office.com/
【METSバーチャルオフィス】※国内最安値(自社調べ)※
お問い合わせ:https://vo-metsoffice.jp/contact/
バーチャルオフィスHP:https://vo-metsoffice.jp/
【運営会社連絡先】
Mail:[email protected]
(営業時間:平日9:00~17:30)
【会社概要】
社名:オリンピア興業株式会社 サービスオフィス事業グループ
本社所在地:東京都中央区日本橋兜町17番2号
設立日:昭和39年3月18日
事業内容:不動産管理業・不動産買取仲介業・不動産開発業・オフィスリーシング業・不動産に関するコンサルティング業、レンタルオフィス・バーチャルオフィスを中心としたサービスオフィスの運営、貸会議室の運営
企業プレスリリース詳細へ
PR TIMESトップへ
更新日:2025.12.01
希少な自社ビル運営のレンタルオフィス「METSオフィス新宿三丁目6階が2025年11月1日にオープン!内見予約・入居者募集を開始!2025年11月19日から第2期募集も開始!
新着記事
100歳の常連さんも。西荻窪『ANSEN』の、“あの頃の贅沢な菓子パン”の独特な魅力
西荻窪にある『ANSEN』は、地元に熱烈なファンを持つ老舗ベーカリーだ。開業以来、変わらない菓子パン類は独特な個性があり、多くの人を引きつけている。
1700冊の地図の本に囲まれる『地理系ブックカフェ空想地図』でコーヒーとスイーツを〜黒猫スイーツ散歩 駒沢大学編3〜
カフェ・スイーツ・パンケーキのお店を年間約1000店以上ぶーらぶらしているミスター黒猫です。特にパンケーキは日本一実食していると自負している黒猫が、気になる街や好きな街を散歩しておすすめのお店を紹介していきます。今回は、そんな黒猫スイーツ散歩の駒沢大学編第3弾です。
おすすめするスポットやお店のメニューなど、みんなの「こりゃいいぜ!」を絶賛募集中です!!
さんたつ公式サポーター登録はこちら






